Il nostro studio presenta un servizio dedicato a chi vuole trasformare la propria abitazione partendo dalle fondamenta del progetto: la distribuzione degli spazi. Spesso le case moderne o da ristrutturare presentano corridoi troppo lunghi, stanze difficili da arredare o zone giorno poco luminose. Il compito del nostro studio è eliminare questi difetti tecnici per recuperare metri quadri preziosi e aumentare il valore dell'immobile.
Perché richiedere una revisione della planimetria?
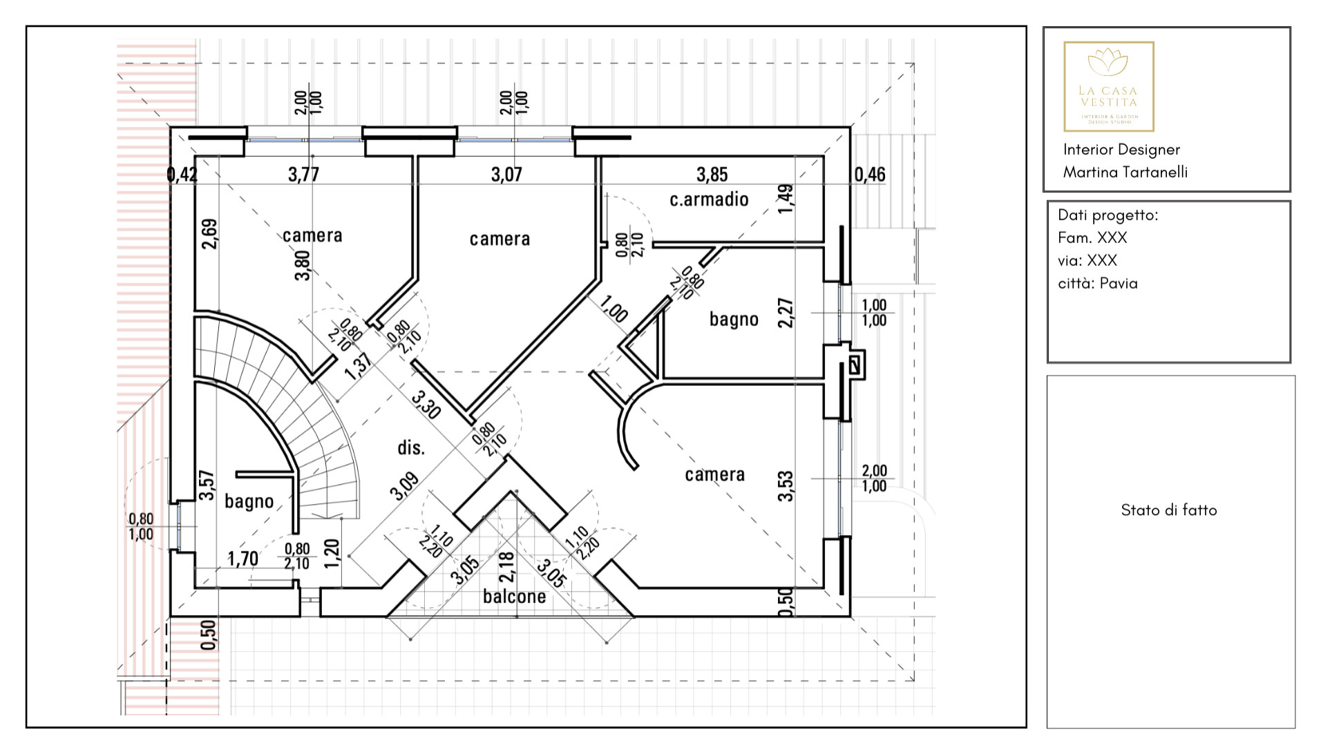
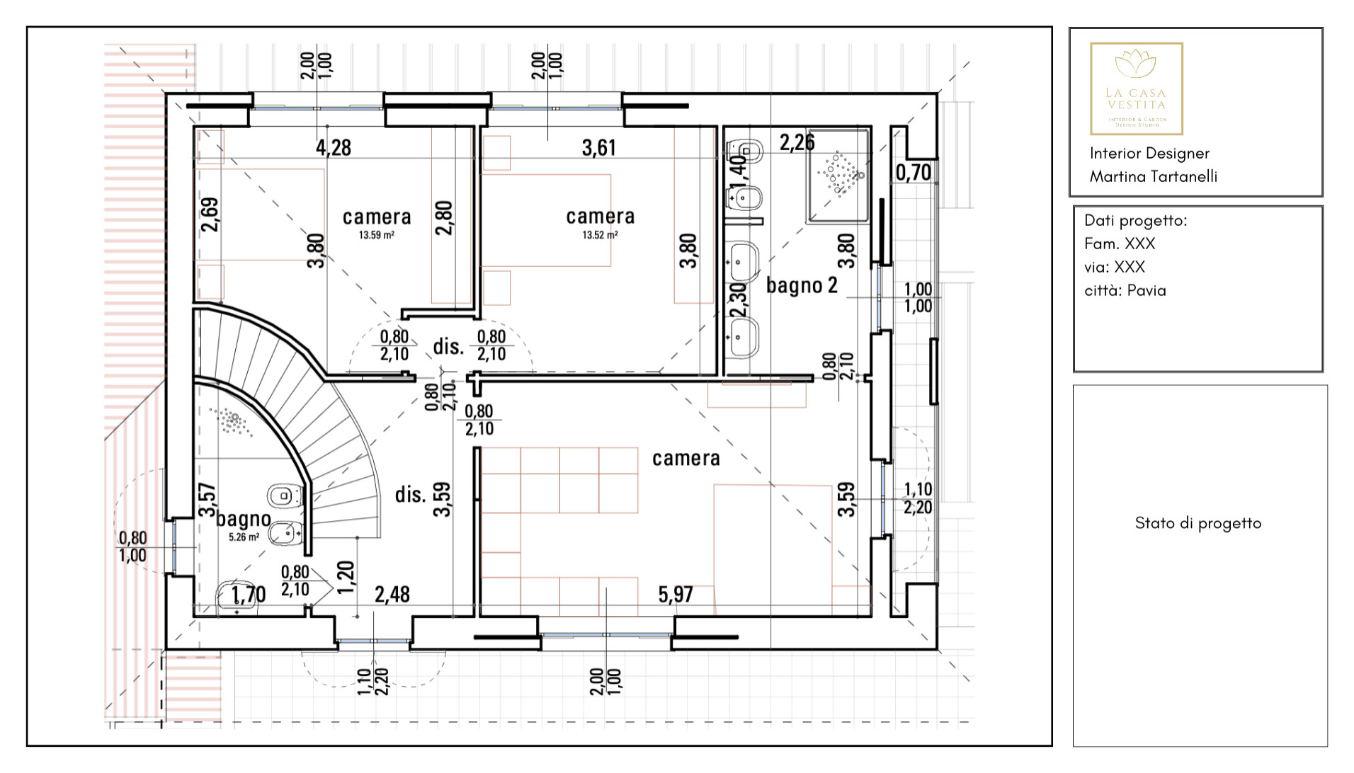
Molti clienti si rivolgono al nostro studio perché, pur avendo una casa generosa nelle metrature, sentono che gli spazi non sono funzionali. Attraverso lo studio delle piante, siamo in grado di:
- Recuperare spazio utile: Trasformiamo i disimpegni e gli angoli morti in armadiature a muro o ripostigli indispensabili.
- Migliorare la vivibilità: Ripensiamo la posizione dei muri per creare zone giorno ampie e comunicanti, ideali per la vita moderna.
- Progettare il secondo bagno: Verifichiamo la fattibilità tecnica per inserire un secondo servizio o una lavanderia, migliorando drasticamente il comfort quotidiano.
- Personalizzare ogni stanza: Ogni modifica è pensata per ospitare mobili su misura, evitando di dover adattare l'arredamento a pareti storte o posizioni sbagliate delle porte.
Il metodo del nostro studio
Analizziamo lo stato attuale della vostra casa a Pavia e provincia, proponendo soluzioni progettuali che tengono conto della luce naturale e dei percorsi interni. Non ci limitiamo a spostare pareti, ma studiamo come la vostra famiglia abiterà quegli spazi, garantendo una casa su misura che rispecchi le vostre reali necessità.
Affidarsi al nostro studio per la revisione della planimetria significa investire oggi per evitare errori costosi durante i lavori e per godere, domani, di una casa perfettamente organizzata, efficiente e bella da vivere.











